压力平衡阀

压力平衡阀采用优质碳素钢制成,用来平衡库内外压力,其库内气体卸出压力可由阀门的重锤来决定。

|
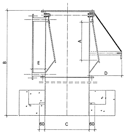
压力平衡阀规格 |
A |
B |
C |
D |
E |
|
100×100 |
100 |
710 |
210 |
100 |
100 |
|
220×220 |
220 |
881 |
310 |
220 |
150 |
|
450×450 |
450 |
1116 |
510 |
450 |
150 |
上一页:[阀门]
下一页:XG系列旋转加料器


