连续式均化库

一、 概述
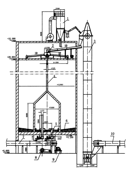
连续式均化库是生料从库顶连续进料,经过充气搅拌的同时连续出料,该库在中心位置设一个圆柱形混合室,以降低库内卸料压力,消除漏斗流,在混合室周围6-12卸料孔,在混合室与库壁之间有6-12个充气区,卸料时轮流向中心室进料,进入混合室的物料因混合室连续充气而进一步混合,使合格的生料从高位溢流管卸出,多余气体则由排气管排至外环区,并抽至收尘器净化,但要求生料制备系统连续稳定可靠,连续式均化库具有投资省,电耗低,工艺布置灵活,结构紧凑,操作简单等特点。其均化值为5-9,电耗0.1-0.2kwh/t。
二、连续式均化库示意图


二、 Φ
|
序号 |
名称及规格 |
单位 |
数量 |
备注 |
|
1 |
气箱式脉冲收尘器PPCS32-4 风机:9-26 No 8D星形卸灰阀:300×300 |
套 |
1 |
|
|
2 |
库顶进料系统 |
套 |
1 |
|
|
3 |
提升机TGD400×38000 输送能力: 减速机ZLY22-20 电动机Y225S-4 37KW |
台 |
1 |
|
|
4 |
中心室排气管 |
只 |
1 |
|
|
5 |
卸料装置B400/315 |
套 |
2 |
|
|
6 |
库内充气箱及管路系统 |
套 |
1 |
|
|
7 |
FU链式输送机FU400×L输送能力 |
只 |
1 |
L由工艺定 |
|
8 |
四八嘴空气分配阀Φ |
套 |
1 |
|
|
9 |
罗茨风机(均化用)ARD-145 风量 |
台 |
1 |
|
|
10 |
FU链式输送机FU400×L 输送能力 |
只 |
1 |
L由工艺定 |
您可能会对以下产品感兴趣
产品好不好 用我们的业绩证明
奥普核心合作伙伴
企业规模怎么样 用我们的资质说明
生产能力怎么样 用我们的设备和团队表明
新闻动态
- 侧式悬臂堆料机的构造及原理
- 什么是 熟料散装机,有哪三大性能特点
- 什么是 气箱脉冲布袋除尘器,安装注意事项概述
- 桥式刮板取料机的特点及操作注意事项
- 什么是圆盘给料机,有哪些优势特点
- 斗式提升机的六大特点概述
- 操作连续式均化库的四大注意事项
- 移动式堆料机三大优势特点及使用步骤
- 关于网站内容违禁词、极限词失效说明
- 斗式提升机的工作过程分为哪三个阶段
- 操作连续式均化库的四大注意事项
- 连续式均化库的使用方法,你知道多少呢?
- 生料均化库在运行中需要定期检查哪些项目,不看后悔!
- 影响生料均化库均化效果的常见因素,看完就明白了!
- 均化库是新型干法水泥生产工艺的重要设施之一
- 连续式均化库具有哪些优势呢
- 谈谈星型卸料装置的性能优势及特点
- 均化库专用的流量阀有哪些特点呢
- 谈谈关于涂装设备的未来发展趋势如何
- 库底卸料装置的密封结构可分为软性密封和刚性密封两种形式


