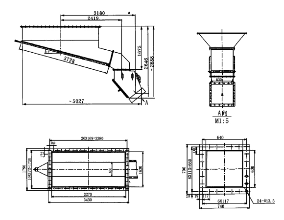
锁风装置
用途:
锁风装置主要用于水泥厂原料磨卸料锁风。
技术性能:
锁风装置生产能力:通过能力为600t/h
锁风装置充气出料溜子:充气量
锁风器:充气量200~
外形安装尺寸见图:

上一页:[阀门]
下一页:XG系列旋转加料器
用途:
锁风装置主要用于水泥厂原料磨卸料锁风。
技术性能:
锁风装置生产能力:通过能力为600t/h
锁风装置充气出料溜子:充气量
锁风器:充气量200~
外形安装尺寸见图:
