电动矩形锁气翻板卸灰阀DESX-I(单门) DESX-II(双门)

一、 概述
该电动矩形锁气翻板卸灰阀普遍适用于建材、冶金、石化、电力等行业。作为各类除尘设备的灰斗锁气卸灰装置,及各种磨机、烘干机、料仓、筒库和闭式输送系统的锁气、卸灰装置等。
该电动矩形锁气翻板卸灰阀采用凸轮、连杆传动,弹簧自动复位机构。具有结构紧凑、设计合理、运转平稳、卸灰、锁气可靠。具有间歇喂料和控制输料的功能,是各种给、卸料工况的理想设备。
技术参数表
|
适用介质
|
工作温度
|
卸灰量
|
|
干燥粉尘
|
150℃
|
2.5~350m3/h
|

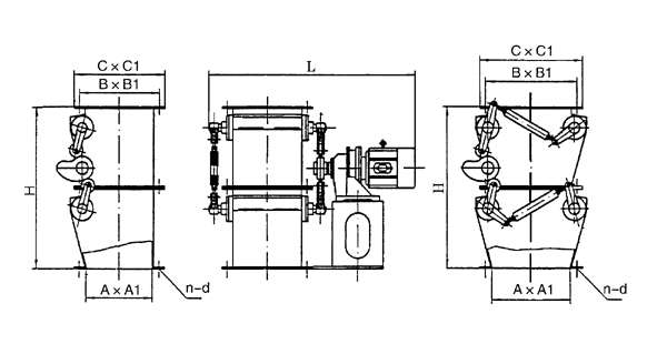
DESX-I II外形连接尺寸
|
A×A1
|
B×B1
|
C×C1
|
H
|
H1
|
L
|
n-d
|
卸灰能力m3/h
|
传动装置型号
|
开闭频率次/min
|
功率kw
|
|
150×150
|
200×200
|
240×240
|
|
460
|
705
|
8-Φ11
|
2.5~3.5
|
BWY-15-59
|
25
|
0.6
|
|
200×200
|
250×250
|
290×290
|
|
580
|
782
|
8-Φ11
|
5~7
|
BWY-15-59
|
25
|
0.6
|
|
220×220
|
270×270
|
310×310
|
|
580
|
802
|
8-Φ11
|
5~7.5
|
BWY-15-59
|
25
|
0.6
|
|
250×250
|
300×300
|
340×340
|
|
580
|
867
|
8-Φ11
|
7~10
|
BWY-18-71
|
21
|
0.5
|
|
300×300
|
360×360
|
400×400
|
560
|
700
|
124
|
12-Φ13
|
9~15
|
BWY-22-71
|
21
|
1.1
|
|
320×320
|
380×380
|
420×420
|
560
|
700
|
126
|
12-Φ13
|
10~18
|
BWY-22-71
|
21
|
1.1
|
|
400×400
|
460×460
|
500×500
|
660
|
800
|
155
|
16-Φ13
|
12~27
|
BWY-2215-121
|
21
|
1.5
|
|
428×428
|
488×488
|
528×528
|
660
|
800
|
160
|
16-Φ13
|
13~30
|
BWY-2215-121
|
21
|
1.5
|
|
450×450
|
510×510
|
550×550
|
660
|
800
|
168
|
16-Φ13
|
17~37
|
BWY-2215-121
|
21
|
1.5
|
|
480×480
|
540×540
|
580×580
|
660
|
800
|
172
|
16-Φ13
|
19~41
|
BWY-2215-121
|
21
|
1.5
|
|
500×500
|
560×560
|
600×600
|
760
|
800
|
175
|
16-Φ13
|
22~48
|
BWY-2215-121
|
21
|
1.5
|
|
600×600
|
670×670
|
720×720
|
800
|
800
|
182
|
16-Φ13
|
38~82
|
BWY-2215-121
|
21
|
3.18
|
|
690×480
|
750×540
|
790×580
|
760
|
800
|
191
|
20-Φ13
|
43~90
|
BWY-2215-121
|
21
|
3.18
|
|
720×400
|
780×460
|
820×500
|
760
|
800
|
221
|
20-Φ13
|
22~48
|
BWY-2215-121
|
21
|
3.18
|
|
800×600
|
870×870
|
920×720
|
800
|
|
229
|
20-Φ18
|
52~113
|
BWY-2215-121
|
21
|
3.18
|
|
800×800
|
870×870
|
920×920
|
112
|
|
229
|
24-Φ18
|
91~197
|
BWY-2215-121
|
21
|
3.18
|
|
1000×800
|
1070×870
|
1120×920
|
112
|
|
240
|
28-Φ28
|
107~230
|
BWY-2215-12
|
21
|
3.18
|
|
1000×1000
|
1080×1080
|
1140×1140
|
130
|
|
240
|
24-Φ22
|
168~350
|
BWY-3322-187
|
8
|
4.5
|
上一页:[阀门]
下一页:XG系列旋转加料器


