气动推杆平板闸阀QTLY-0.1

一、 概述
该气动推杆平板闸阀就我厂改进传统结构的产品,工艺先进,质量可靠,气动推杆平板闸阀广泛地用于冶金、矿山、建材等行业的粉尘物料的流量控制管道上,是控制启闭要求迅速的理想设备。
二、 技术参数表
|
公称压力(Mpa) |
≤0.6 |
|
适用介质 |
粉尘物料 |
|
适用温度(℃) |
≤150 |
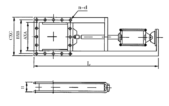
三、主要外形及连接尺寸:(见图、表)

四、外形与安装尺寸
|
A×A |
B×B |
C×C |
L |
H |
n-d |
重量(kg) |
|
200×200 |
256×256 |
306×306 |
920 |
120 |
8-Φ14 |
130 |
|
250×250 |
306×306 |
346×346 |
1050 |
120 |
8-Φ14 |
150 |
|
300×300 |
356×356 |
396×396 |
1260 |
120 |
8-Φ14 |
180 |
|
400×400 |
456×456 |
496×496 |
1560 |
140 |
12-Φ14 |
200 |
|
450×450 |
510×510 |
556×556 |
1670 |
140 |
12-Φ14 |
230 |
|
500×500 |
560×560 |
606×606 |
1890 |
140 |
16-Φ18 |
270 |
|
600×600 |
660×660 |
706×706 |
1830 |
160 |
16-Φ18 |
320 |
|
700×700 |
770×770 |
820×820 |
2520 |
160 |
20-Φ18 |
350 |
|
800×800 |
870×870 |
920×920 |
2750 |
180 |
20-Φ18 |
410 |
|
900×900 |
974×974 |
1030×1030 |
2950 |
180 |
24-Φ23 |
450 |
|
1000×1000 |
1074×1074 |
1130×1130 |
3110 |
150 |
24-Φ23 |
505 |


