您可能会对以下产品感兴趣
产品好不好 用我们的业绩证明
奥普核心合作伙伴
企业规模怎么样 用我们的资质说明
生产能力怎么样 用我们的设备和团队表明
新闻动态
- 侧式悬臂堆料机的构造及原理
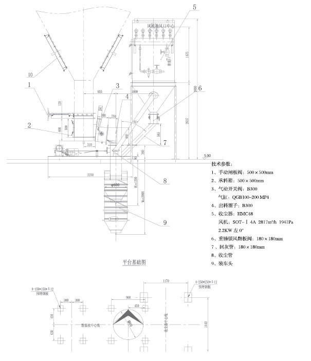
- 什么是 熟料散装机,有哪三大性能特点
- 什么是 气箱脉冲布袋除尘器,安装注意事项概述
- 桥式刮板取料机的特点及操作注意事项
- 什么是圆盘给料机,有哪些优势特点
- 斗式提升机的六大特点概述
- 操作连续式均化库的四大注意事项
- 移动式堆料机三大优势特点及使用步骤
- 关于网站内容违禁词、极限词失效说明
- 斗式提升机的工作过程分为哪三个阶段
- 什么是 熟料散装机,有哪三大性能特点
- 熟料散装机的安装要点概述,不可错过
- 什么是粉煤灰散装机,特点及应用怎样
- 熟料散装机的使用注意事项,了解吗
- 汽车散装机的安装、调试与运行要点讲解
- 熟料散装机的安装要点讲解,不可错过
- 粉煤灰散装机好评不断,靠的就是这几点!
- 了解熟料散装机的使用及维护注意要点
- 库底散装机,还不知道这些知识点
- 熟料散装机的相关安装步骤讲解





