南京夜网论坛梧桐,北京品茶洋马,深圳福永蒲友论坛

OKX-Ⅱ卸料阀系统

概述
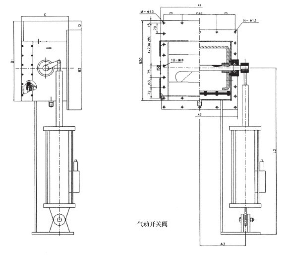
        库底卸料装置由库底螺旋阀、库底分料箱、气动开关阀、电动流量控制阀及卸料溜子组成(见图一),用于水泥生料粉或水泥库底卸料。库底卸料装置能自动调节卸料流量且均匀,其结构合理,操作维护简单方便,可设三个下料口,用户也可选用库侧卸料装置(见图二)。
        本厂卸料装置的气动开关阀(见图三)、电动流量调节阀(见图三)是采用德国技术制造,阀芯、壳体采用16Mn钢制作,阀芯表面镀铬,厚度10μm,以增加其耐磨性能,阀芯的密封采用优质整体羊毛毡密封,密封盒的松紧可在外部调节,更换时可在无须拆卸阀体的情况下从双侧抽出,阀芯开口、壳体部件下料均采用激光切割、机床加工的方式制作,充分保证设备装配的高精密度。
进、出口法兰及外形尺寸

代号

规格

 A1

A2 

A3

m

n x e

M

N 

 L1

 L

B250

340

330

235

100

1 x 100

10

20

345

760

B300

390

380

260

 90

8 x 85 

12

22

370

760

B400

490

480

330

115

2 x 110 

12

22

420

760

B500

590

580

380

110

3 x 110

14

24

470

780

B630

730

720

455

110

4 x 115

16

30

540

780

规格

部件

B250

B315 

B400

B500

B600

备注

螺旋闸门

250x250

315x315

400x400

500x500

630x630

 

卸料能力

150t/h(max)

220t/h(max)

410t/h(max)

550t/h(max)

700t/h(max)

 

阀芯开口

Ω形或三角形

Ω形或三角形

Ω形或三角形

Ω形或三角形

Ω形或三角形

或η形

流通面积

0.016m2

0.024m2

0.04m2

0.052m2

0.068m2

 

充气风量

13.5m3/h

16m3/h

21m3/h

27m3/h

34m3/h

压力<8000pa

气缸

QGB-100x200-MP4

QGB-100x200-MP4

QGB-100x200-MP4

QGB-125x200-MP4

QGB-125x200-MP4

 

耗气量12m3/h

耗气量12m3/h

耗气量12m3/h

耗气量17m3/h

耗气量17m3/h

压力<0.6Mpa

电磁阀KD25-8220V

电磁阀KD25-8220V

电磁阀KD25-8220V

电磁阀KD25-8220V

电磁阀KD25-8220V

 

开关时间1-2S

开关时间1-2S

开关时间1-2S

开关时间1-2S

开关时间1-2S

 

调节范围

0-150t/h(max)

0-220t/h(max)

0-410t/h(max)

0-550t/h(max)

0-700t/h(max)

 

阀芯开口

Ω形或三角形

Ω形或三角形

Ω形或三角形

Ω形或三角形

Ω形或三角形

或η形

流通面积

0.016m2

0.024m2

0.04m2

0.052m2

0.068m2

压力<8000pa

充气风量

13.5m3/h

16m3/h

21m3/h

27m3/h

34m3/h

或根据要求

电动

执行器

AS-25

AS-25

BS-60

BS-60

A+RS100

 

输出力矩250Nm

输出力矩250Nm

输出力矩600Nm

输出力矩600Nm

输出力矩1000Nm

 

输入输出4-20mA

输入输出4-20mA

输入输出4-20mA

输入输出4-20mA

输入输出4-20mA

 

全程时间30S

全程时间30S

全程时间30S

全程时间30S

全程时间30S

 

电源电压220V50HZ

电源电压220V50HZ

电源电压220V50HZ

电源电压220V50HZ

电源电压220V50HZ

或根据要求

 

您可能会对以下产品感兴趣

产品好不好 用我们的业绩证明

奥普核心合作伙伴

企业规模怎么样 用我们的资质说明

生产能力怎么样 用我们的设备和团队表明

新闻动态

均化库

水泥储存库

电动蝶阀

星形卸灰阀

回转给料器

泄压阀

主站蜘蛛池模板: 牙克石市| 长沙市| 柳江县| 枞阳县| 若尔盖县| 双鸭山市| 长丰县| 高邮市| 崇义县| 东兴市| 罗山县| 四子王旗| 梁河县| 项城市| 方城县| 南昌县| 大连市| 巴彦县| 井陉县| 呼和浩特市| 宁安市| 灵宝市| 康马县| 涟源市| 九江县| 旬邑县| 长治县| 普定县| 崇义县| 牡丹江市| 开化县| 湘西| 台安县| 略阳县| 大宁县| 元谋县| 赫章县| 澄江县| 卢氏县| 阿巴嘎旗| 色达县|